Pending MLS# 25078288

11758 Parish Drive, Bridgeton, MO 63044

Subdivision: St James Estates 4

List Price: $285,000

4

Bedrooms

2

Baths

1,064

Area (sq.ft)

$268

Cost/sq.ft

Multi/Split

Type

1

Days on Market
Call Agent

Description

WOW! This beautifully updated and exceptionally well-maintained home sits on a spacious corner lot with a fully fenced backyard—perfect for everyday living and entertaining. From the moment you walk in, you’ll appreciate the modern updates and open, inviting layout. The upper level features gorgeous wood flooring and newer vinyl windows that fill the space with natural light. The living room flows seamlessly into the stunning, renovated kitchen, complete with quartz countertops, custom cabinetry, recessed lighting, and a large center island with built-in storage and electric. There’s still plenty of space for a full dining table, making this the perfect setup for gatherings and mealtime. Down the hallway, you’ll find three generous bedrooms and an updated full bathroom featuring a dual vanity with convenient access from both the primary bedroom and the hallway. The lower level adds even more living space with a large recreation area highlighted by an electric fireplace, a second fully updated bathroom, an additional bedroom, and a spacious storage area. A sump pump provides added protection and peace of mind. From the kitchen, step out onto the covered deck overlooking the backyard—ideal for hosting holidays, BBQs, or simply relaxing outdoors. The yard is fully fenced and includes two separate paver patio areas, giving you multiple options for lounging or entertaining. The oversized 2-car garage offers room for vehicles plus extra storage. Located just minutes from shopping, restaurants, and major highways, this home truly has it all. Don’t miss out!

Property Information

List Price $ 285,000
Original Price $ 285,000
Status Pending
MLS# 25078288
Bedrooms 4
Full baths 2
Half baths 0
Main Floor Full Baths 2
Sq. Ft. Above 1,064
Lot Size
Acres 0
Subdivision St James Estates 4
Municipality Bridgeton
School District Pattonville R-III
County St Louis
Property Type Residential
Style Multi/Split
Style Description
Transaction Type
Special Conditions Standard
Type
Building Exterior Amenities
Building Style Split Level
Ownership Private
Special Description Standard
Appliances Some Dishwasher,Disposal,Ice Maker,Microwave,Oven,Gas Range,Refrigerator,Washer/Dryer,Gas Water Heater

Additional Information

Elementary School Robert Drummond Elem.
Jr. High School Holman Middle
Sr. High School Pattonville Sr. High
Association Fee None
Architecture Split Level
Construction Brick,Vinyl Siding
Garage Spaces 2
Carport Spaces 0
Basement Description Bathroom,Partially Finished,Full
Fireplace Type Basement,Electric
Fireplace Location
Lot Dimensions
Special Areas
Cooling Ceiling Fan(s),Central Air
Sewer Public Sewer Sewer
Heating Forced Air
Water Public
Heat Source
Kitchen
Appliances Dishwasher,Disposal,Ice Maker,Microwave,Oven,Gas Range,Refrigerator,Washer/Dryer,Gas Water Heater
Dining
Interior Decor Custom Cabinetry,Dining/Living Room Combo,Double Vanity,Eat-in Kitchen,Kitchen Island,Kitchen/Dining Room Combo,Open Floorplan,Recessed Lighting,See Remarks,Storage
Property Tax $3,010

Map Location

Rooms Dimensions

Room Dimensions (sq.rt)
Living Room (Level-Upper) 14 x 14
Kitchen (Level-Upper) 12 x 10
Dining Room (Level-Upper) 12 x 7
Primary Bedroom (Level-Upper) 12 x 10
Bedroom 2 (Level-Upper) 11 x 9
Bedroom 3 (Level-Upper) 10 x 9
Bathroom (Level-Upper) 12 x 6
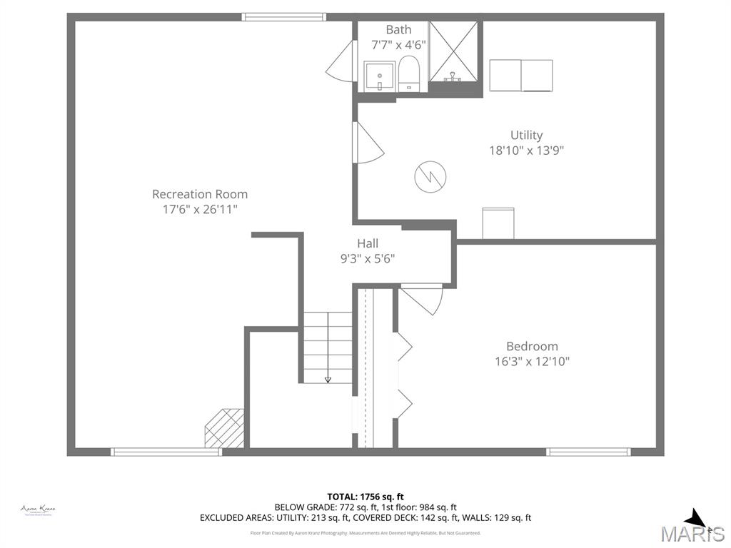
Recreation Room (Level-Lower) 26 x 17
Bathroom 2 (Level-Lower) 4 x 7
Storage (Level-Lower) 13 x 18
Bedroom 4 (Level-Lower) 12 x 16

Listing Courtesy of MORE, REALTORS - [email protected]